Villa

Overschiese Kleiweg 717

€ 4000,-

Rotterdam

3

Slaapkamers

1

Badkamers

163

M2 Wonen

M2 Buiten

M2 Gebouwgebonden
Buitenruimte

Een prachtig vrijstaande villa met een op het zuidwesten gelegen tuin op een unieke locatie aan de Overschiese Kleiweg, aan de rand van Park Zestienhoven tussen Overschie en Hillegersberg.

Landelijk wonen, midden in het groen omringd door weilanden. Wat deze fijne villa zo bijzonder maakt is de aangename en multifunctionele indeling waar je alle kanten mee op kan. Een royale woonkamer met een moderne open keuken, drie grote slaapkamers en een zolder. De woning is uitstekend geïsoleerd en heeft een energielabel A. In de tuin is het de gehele dag door heerlijk genieten van de zon. Een unieke combinatie van wooncomfort en een royale buitenruimte met veel privacy. Alle voorzieningen, zoals winkels, supermarkten, restaurants, sportactiviteiten en uitvalswegen (A13 en A20) op 5 minuten afstand. Het Sint Franciscus Gasthuis, openbaar vervoer (tram, bus, metro, Randstadrail) en de Golfbaan "Seve" zijn op loopafstand. Binnen 15 minuten ben je per fiets in het centrum van Rotterdam. Kortom: heerlijk rustig en stads wonen in het buitengebied.

Plan een bezichtiging
Bekijk plattegrond
No items found.

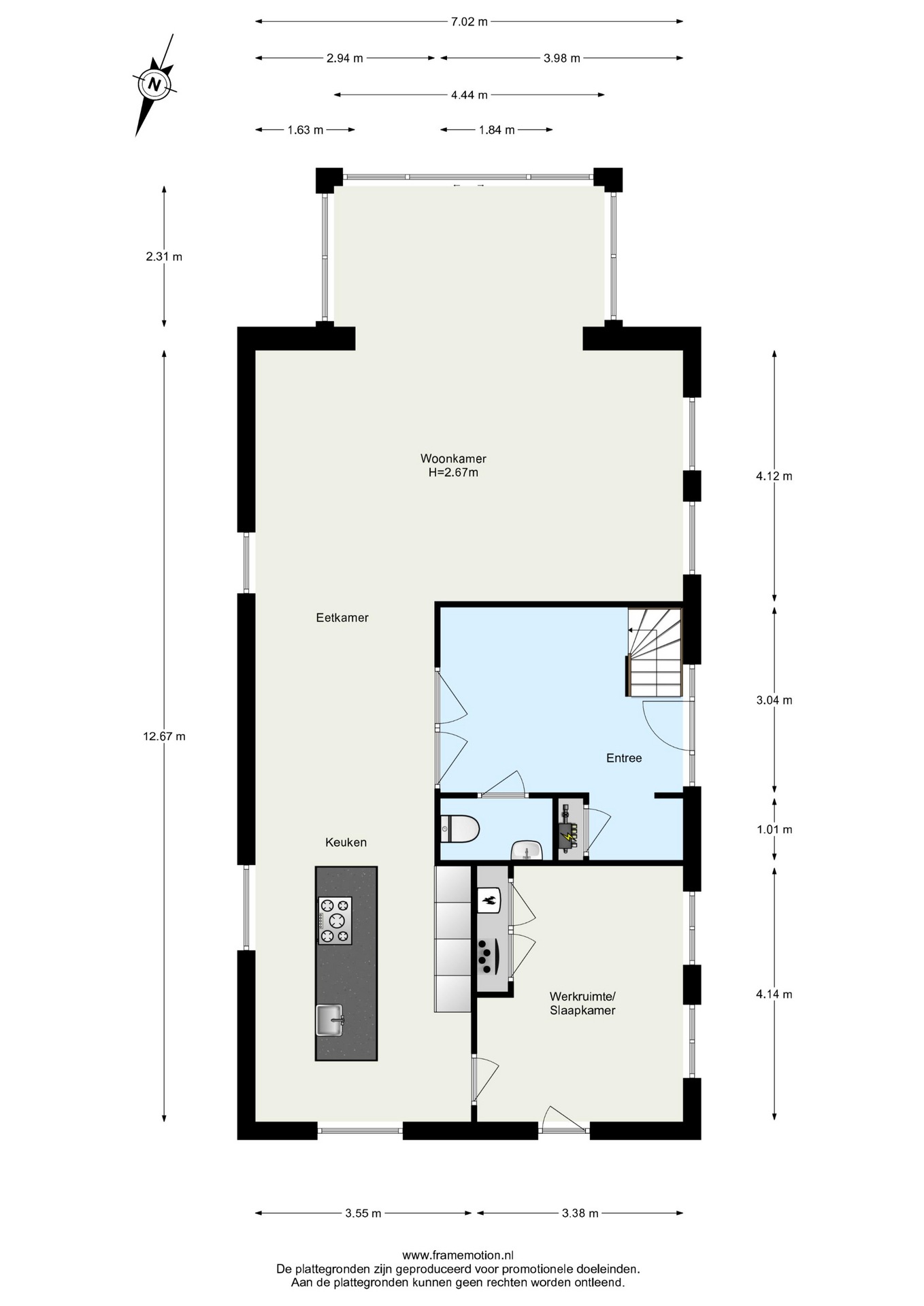
Woonverdieping:
Representatieve entree, garderobe en toilet. Vanuit de hal betreed je de sfeervolle living en aan de voorzijde een nette keuken met alle denkbare apparatuur. De tuin bevindt zich rondom het huis en er zijn fijne zitplekken gecreëerd waardoor je altijd een plek in de zon kunt bemachtigen. Terug in de woning is er nog een werkkamer te vinden. Multifunctioneel dus!

Eerste verdieping:
Overloop met toegang tot de drie ruime slaapkamers. De hoofdslaapkamer is gelegen aan de achterzijde met aanDe royale badkamer is voorzien van een ligbad, dubbele wastafel met meubel, toilet en een inloopdouche.

Zolder:
Berging/ technische ruimte. Mogelijkheid tot het plaatsen van twee dakkapellen waardoor dit een volwaardige extra slaap/werk kamer kan worden.

Bijzonderheden:
- Gelegen op eigen grond;
- Bouwjaar 2020;
- Woonoppervlakte ca. 163 m2;
- Volledig geïsoleerd: energielabel A;
- Veel lichtinval;
- Zonnige tuin;
- Ruime parkeergelegenheid op eigen grond;
- Op steenworpafstand van Airport Rotterdam/The Hague;
- Landelijk gelegen met prachtig uitzicht en toch nabij de stad;
- Groene omgeving met Park Zestienhoven, de Schiezone, Midden-Delfland en de Vlinderstrik op loop/fietsafstand;
- Aanvang huurtermijn in overleg.

Huurvoorwaarden:
- Beschikbaar per direct, ingangsdatum in overleg;
- Huurovereenkomst: minimale duur 12 maanden, verlenging mogelijk;  
- Waarborgsom minimaal 1 huurmaand;
- Huisdieren niet toegestaan.

Alle verstrekte informatie moet beschouwd worden als een uitnodiging tot het doen van een bod of om in onderhandeling te treden. Er kunnen geen rechten worden ontleend aan deze woninginformatie.  
Metz Real Estate is de makelaar van de verhuurder. Wij adviseren u uw eigen aanhuurmakelaar mee te nemen voor uw belangenbehartiging bij de aanhuur van uw toekomstige huis.

Plan een bezichtiging
Bekijk plattegrond
geinteresseerd?

neem vandaag nog contact met ons op.

Enthousiast?
Bedankt! We nemen zo snel mogelijk contact met je op!
Klik voor confetti
Oeps! Er ging iets mis...