Uniek 5-kamerappartement met 3 buitenruimtes in hartje Rotterdam
Op zoek naar een ruime en luxe woning midden in de stad, maar mét genoeg buitenruimte om te ontspannen? Deze dubbele bovenwoning van maar liefst 5 kamers en 3 buitenruimtes, waaronder een royaal dakterras op het zonnige zuidwesten, combineert het beste van beide werelden: volop genieten van het levendige stadsleven én thuiskomen in comfort en stijl. De woning is volledig gerenoveerd en afgewerkt met oog voor detail. Stap ’s ochtends zo een gezellig koffietentje op de Meent binnen, of borrel in de avond bij De Gele Kanarie. Vanuit hier ligt de hele stad aan je voeten! Gelegen direct aan het centrum, met supermarkten, cafés, OV (trein, tram, metro) en uitvalswegen (A13, A20) binnen handbereik. Rotterdam Centraal en station Blaak zijn op loopafstand. Horeca, winkels en hotspots zoals de Oude Haven, Markthal en de Meent liggen om de hoek. Ook de natuur is dichtbij: binnen 10 minuten fietsen sta je in het Kralingse Bos.
Plan een bezichtigingIndeling
Begane grond
Gesloten portiek met gezamenlijk trappenhuis naar de eigen voordeur.
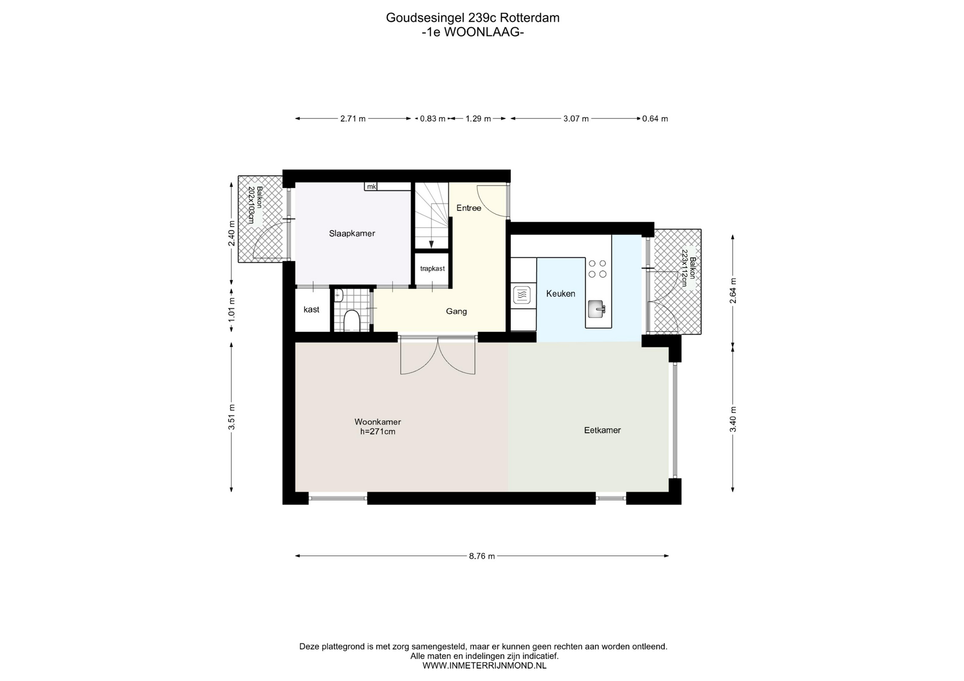
Derde verdieping
Via de hal bereik je de royale living, afgesloten met stijlvolle zwarte dubbele deuren. De combinatie van een prachtige houten vloer, strak gestucte wanden en plafonds, en ingebouwde spotverlichting zorgt voor een direct instapklare uitstraling. De langgerekte woonkamer biedt ruimte voor een aparte zit- en eethoek. De moderne open U-keuken in mat zwart met betonlook werkblad is compleet uitgerust met inbouwapparatuur, waaronder een vaatwasser, oven, koel-vriescombinatie, afzuigkap en gaskookplaat. Vanuit de woonkamer geven openslaande deuren toegang tot het eerste balkon, perfect voor een kop koffie in de ochtendzon. Op deze verdieping bevindt zich tevens een slaapkamer met toegang tot het tweede balkon. Ideaal als werk-, hobby- of logeerkamer. Daarnaast zijn er op deze verdieping ook een apart toilet en twee opbergruimtes aanwezig.
Vierde verdieping
De overloop geeft toegang tot alle vertrekken. Aan de voorzijde bevinden zich twee ruime slaapkamers, beide met openslaande deuren naar het royale dakterras. Hier geniet je de hele dag van zon én een weids uitzicht over de stad, ideaal voor een BBQ met vrienden of een rustige avond met een boek. Aan de achterzijde ligt een vierde slaapkamer, nu in gebruik als walk-in-closet. De moderne badkamer is voorzien van een inloopdouche, dubbele wastafel en toilet. Er is tevens een aparte ruimte voor de wasmachine.
Bijzonderheden
- Bouwjaar: 1951;
- Gelegen op eigen grond;
- Woonoppervlakte circa 105 m2;
- Energielabel C;
- Berging circa 8 m2;
- Drie buitenruimtes van circa 21 m2;
- Verwarming en warm water middels CV-ketel (2016);
- Volledig voorzien van dubbele beglazing;
- Goed functionerende, actieve Vereniging van Eigenaars; bijdrage € 196,- per maand;
- In de koopovereenkomst wordt een ouderdomsclausule opgenomen;
- In de directe omgeving zijn alle dagelijkse voorzieningen te vinden, zoals openbaar vervoer, winkels, horeca, goede verbinding tot uitvalswegen en recreatiemogelijkheden;
- Oplevering in overleg, kan snel.
Biedlogboek
Makelaars zijn wettelijk verplicht een biedlogboek bij te houden bij de verkoop van bestaande woningen. Biedingen kunt u, indien gewenst, nog steeds mondeling met ons bespreken maar dient u daarna digitaal aan ons te bevestigen via uw MOVE-account.
Alle verstrekte informatie moet beschouwd worden als een uitnodiging tot het doen van een bod of om in onderhandeling te treden. Er kunnen geen rechten worden verleend aan deze woninginformatie.
Metz Real Estate is de makelaar van de verkoper. Wij adviseren u uw eigen aankoopmakelaar mee te nemen ter behartiging van uw belangen bij de aankoop van uw toekomstige woning.


































