Sfeervolle woning waar comfort, stijl en toegankelijkheid samenkomen, perfect voor wie gelijkvloers en zorgeloos wil wonen op een rustige locatie, met de stad binnen handbereik.
In het populaire en kindvriendelijke Nieuw Terbregge, op korte afstand van de Rotte en tussen het Kralingse Bos en het Lage Bergse Bos, ligt deze verzorgde en instapklare woning uit 2004. Een huis dat comfort, modern woongemak en een fijne ligging combineert, ideaal voor starters, jonge gezinnen, ouderen of iedereen die rustig wil wonen met de stad binnen handbereik.
Plan een bezichtigingDe Mattenbiesstraat ligt op een heerlijke plek: vlak bij de Rotte en het Lage Bergse Bos, waar je eindeloos kunt wandelen, fietsen of gewoon genieten van de natuur langs het water. Voor een hapje of drankje hoef je ook niet ver: strijk neer bij Brasserie Woodz, geniet van een diner met uitzicht bij Gauchos aan de Plas of ontdek de gezellige Bergse Dorpsstraat met haar speciaalzaken, boetiekjes en horeca.
Sportliefhebbers hebben hier volop keuze met hockey, tennis, voetbal en diverse sportscholen in de buurt. Basisscholen en kinderopvang liggen bovendien op loop- en fietsafstand, perfect voor gezinnen met jonge kinderen. Ook de bereikbaarheid is uitstekend: tram en bus zijn om de hoek, met de fiets sta je in een kwartier in hartje Rotterdam en met de auto rijd je zo de A20 of A16 op.
Wist je dat dit appartement uitermate geschikt is voor ouderen of mindervaliden? Er is een lift aanwezig in het gebouw en het gehele appartement is drempelloos ingedeeld, zodat bewegen door de woning comfortabel en veilig is.
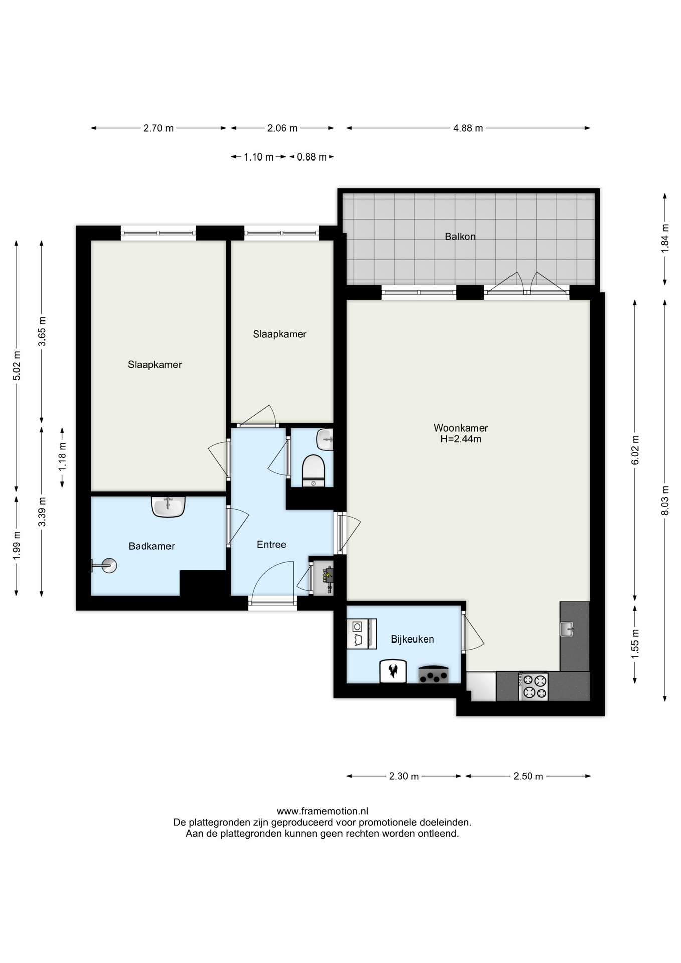
Indeling:
Eerste verdieping:
Je komt binnen in de hal, die toegang geeft tot alle vertrekken. De woonkamer is stijlvol ingericht in een moderne, Scandinavisch geïnspireerde stijl met lichte kleuren, natuurlijke materialen en een warme, rustige sfeer. De strakke lijnen worden gecombineerd met zachte tinten en houten accenten, wat zorgt voor een uitnodigende en tijdloze uitstraling.
De open keuken sluit naadloos aan op de woonkamer en is van alle gemakken voorzien. Er is volop kastruimte, zowel boven als onder, en de inductiekookplaat is in 2024 nog vernieuwd. Aan de zijkant van de keuken bevindt zich een praktische bergkast met de CV-ketel, WTW-installatie (beide uit 2024) en de aansluiting voor de wasmachine.
Vanuit de hal bereik je twee slaapkamers, waarvan één momenteel is ingericht als inloopkast. Deze ruimte leent zich uiteraard ook perfect als werkkamer, logeerkamer of babykamer. De badkamer is volledig in stijl met de rest van het appartement: modern en verzorgd, met grijze tegels, zwarte accenten, een inloopdouche, wastafelmeubel, handdoekenradiator en inbouwspots.
Niet te vergeten het fijne balkon: een heerlijk plekje voor een kop koffie in de ochtendzon of een goed glas wijn aan het einde van de dag. Door het bovengelegen balkon zit je lekker droog op regenachtige dagen, en wat dacht je van het plaatsen van een heater zodat je in elk seizoen van het balkon kunt genieten?
In de ondergelegen parkeergarage beschik je over een eigen vaste parkeerplaats en een separate berging, ideaal voor extra opslag of het stallen van fietsen.
Bijzonderheden:
- Bouwjaar 2004;
- Woonoppervlakte: ca. 72 m2;
- Energielabel A;
- Erfpacht afgekocht tot 2051;
- Fijn balkon van ca. 9 m2;
- Parkeerplaats en berging in de ondergelegen garage;
- Badkamer en toilet vernieuwd in 2021;
- Verwarming en warm water via CV-ketel en WTW installatie beide vernieuwd in 2024;
- Airconditioning geplaatst in 2023;
- Actieve VvE, maandelijkse bijdrage € 151,-.
- Oplevering in overleg.
Biedlogboek
Makelaars zijn wettelijk verplicht een biedlogboek bij te houden bij de verkoop van bestaande woningen. Biedingen kunt u, indien gewenst, nog steeds mondeling met ons bespreken maar dient u daarna digitaal aan ons te bevestigen via uw MOVE-account.
Alle verstrekte informatie moet beschouwd worden als een uitnodiging tot het doen van een bod of om in onderhandeling te treden. Er kunnen geen rechten worden verleend aan deze woninginformatie.
Metz Real Estate is de makelaar van de verkoper. Wij adviseren u uw eigen aankoopmakelaar mee te nemen ter behartiging van uw belangen bij de aankoop van uw toekomstige woning.




























